Закладки0
UsupovMarket / Другие тематики / Чертежи буровой установки для бурения скважин на воду
Почему такая цена?
Категории: Другие тематики
  • Добавлено: 2014-12-22
  • Цена у автора: 1990 руб.
  • Сайт автора: Перейти
  • Доступ: Облако Mail / Yandex / Google
  • Загрузка: PC / Smartphone / Tablet

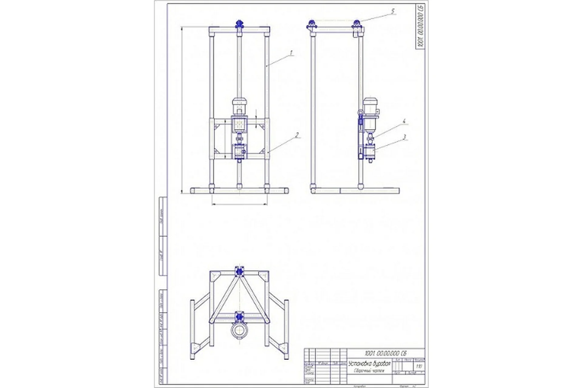
Чертежи буровой установки для бурения скважин на воду + обучение бурению + консультации по сборке буровой.

Модернизированный вариант малогабаритной буровой установки на основе классической схемы, применяемой на "Минской", "Вологодской" и им подобных буровых установках эконом-класса.
Комплектация чертежей:

1. Подробное руководство по изготовлению рамы буровой установки и каретки.

2. Схема самодельного бура.

3. Руководство по самостоятельному изготовлению бура.

4. Чертежи замков для буровых штанг с трапециидальной и конусной резьбой.

5. Чертёж вертлюга.

Продающий сайт

Отзывы

(Читать все отзывы ->)
Минимальная длина отзыва - 50 знаков.
Или
Кликните на изображение чтобы обновить код, если он неразборчив

С этим курсом также покупают

Больше курсов из категории «Другие тематики»