Закладки0
UsupovMarket / Строительство и ремонт / Чертежи семи газогенераторных котлов от 15 до 100 кВт, 2014
Почему такая цена?
  • Добавлено: 2015-02-11
  • Цена у автора: 4050 руб.
  • Доступ: Облако Mail / Yandex / Google
  • Загрузка: PC / Smartphone / Tablet
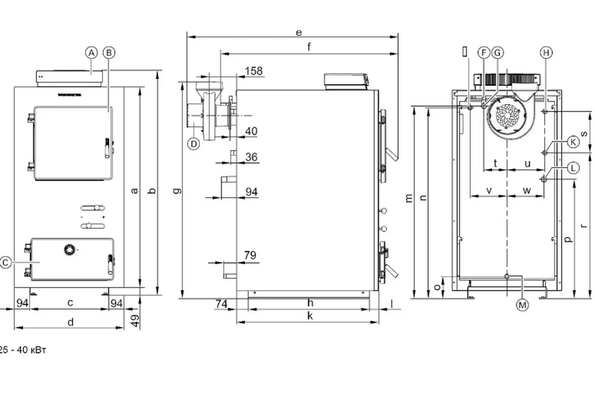
​ Чертежи пиролизных котлов 15-100 кВт
7 моделей котлов на площади отопления от 100 до 1000 кв.м​ ​ Продолжение складчины по пиролизным котлам. Из предыдущей складчины были не охвачены конструкции котлов на большие площади.
По просьбам и кто не успел приобрести, беспрецедентная складчина по цене и материалу!!!
Все 7 моделей котлов, на все случаи жизни и площади до 1000 кв.м.
Если успеем собраться за 11 дней, у продавца акция, все 7 чертежей за 4000 рублей.
Но полагаю так быстро не уложимся и приобретение составит 5500 рублей, что и возьмем за сумму старта.

Отзывы

(Читать все отзывы ->)
Минимальная длина отзыва - 50 знаков.
Или
Кликните на изображение чтобы обновить код, если он неразборчив

С этим курсом также покупают

Больше курсов из категории «Строительство и ремонт»